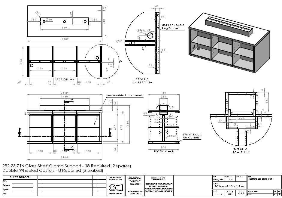
UK based national retail store asked us to develop a unit to display the table lamps they offer in the store.
When we assessed the existing client drawings, we found that it was designed to either be delivered to site complete, or in kit form.
This was unfeasible as these units were being installed in active retail stores and had to be done in 1 night whilst the store is closed.
We proceeded to make the unit into 2 units, a top (with glass insert) and a top piece to use as a shelf and to hide the cabling.
This made it much easier to fit on site with it now being able to fit in lifts and can easily be installed in one night.



